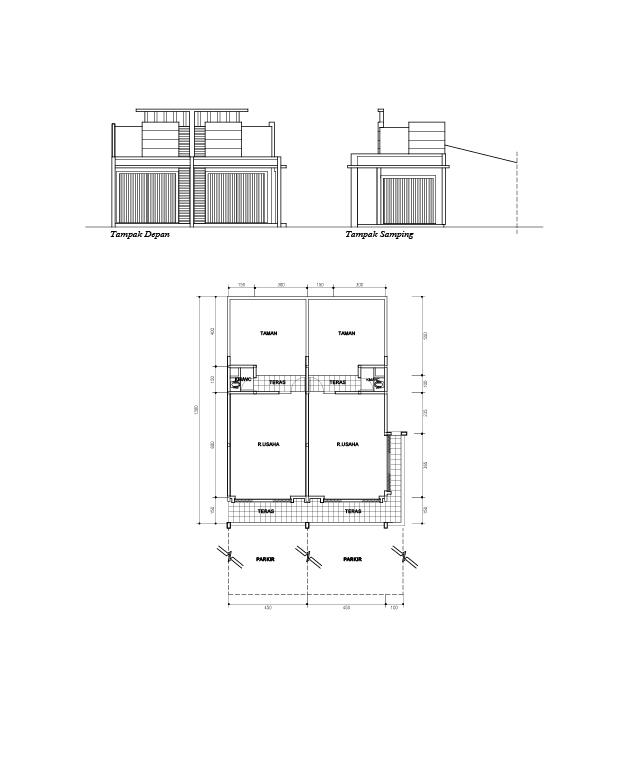
Kamar Tidur : 0
Kamar Mandi : 1
Lahan Parkir : 1
Watt : 2200 Watt
Luas Tanah : 45-58m2
Luas Bangunan : 34m2
Address
Jl. Bekasi Timur Regensi, Cimuning, Bekasi 17155
Property Type
Landed House & Commercial
Status
Available
Starting Price
400 Jt
Facility
- Kolam Renang Fun Park
- Keamanan 24 Jam
- Pusat Pendidikan
Access
- Pintu Tol Bekasi Barat 15 menit
- Pintu Tol Jati Asih 15 menit
Transportation
- Transportasi online
- Angkutan 24 jam
Surrounding Area
- RS Elisabeth Kemang Pratama
- Sekolah Al Azhar
- Rumah Sakit Rawa Lumbu
Luas Tanah 60-107 m2
Luas Bangunan 29-32 m2
Luas Tanah 72-119 m2
Luas Bangunan 36 m2
Luas Tanah 101-241 m2
Luas Bangunan 36 m2
Luas Tanah 58-123 m2
Luas Bangunan 34-36 m2
Luas Tanah 45-58 m2
Luas Bangunan 34 m2
Luas Tanah 75-127 m2 m2
Luas Bangunan 29 m2 m2

Kalindo Land adalah Property Developer yang berpengalaman sejak tahun 1980 dan berfokus kepada pengembangan hunian di Jakarta, Tangerang, Cibubur, Cileungsi, Bogor dan Bekasi.
OFFICE HOUR
Our Marketing Office Open Every:
Monday - Friday:
Saturday-Sunday:
SUBSCRIBES
Stay informed on our latest news!
GET IN TOUCH
BANK PARTNER
